Book Errata
Tutorial Guide to AutoCAD 2024
2D Drawing, 3D Modeling
Published May 25, 2023
698 Pages
ISBN: 978-1-63057-606-6
- View Errata
- Submit Errata
Errata
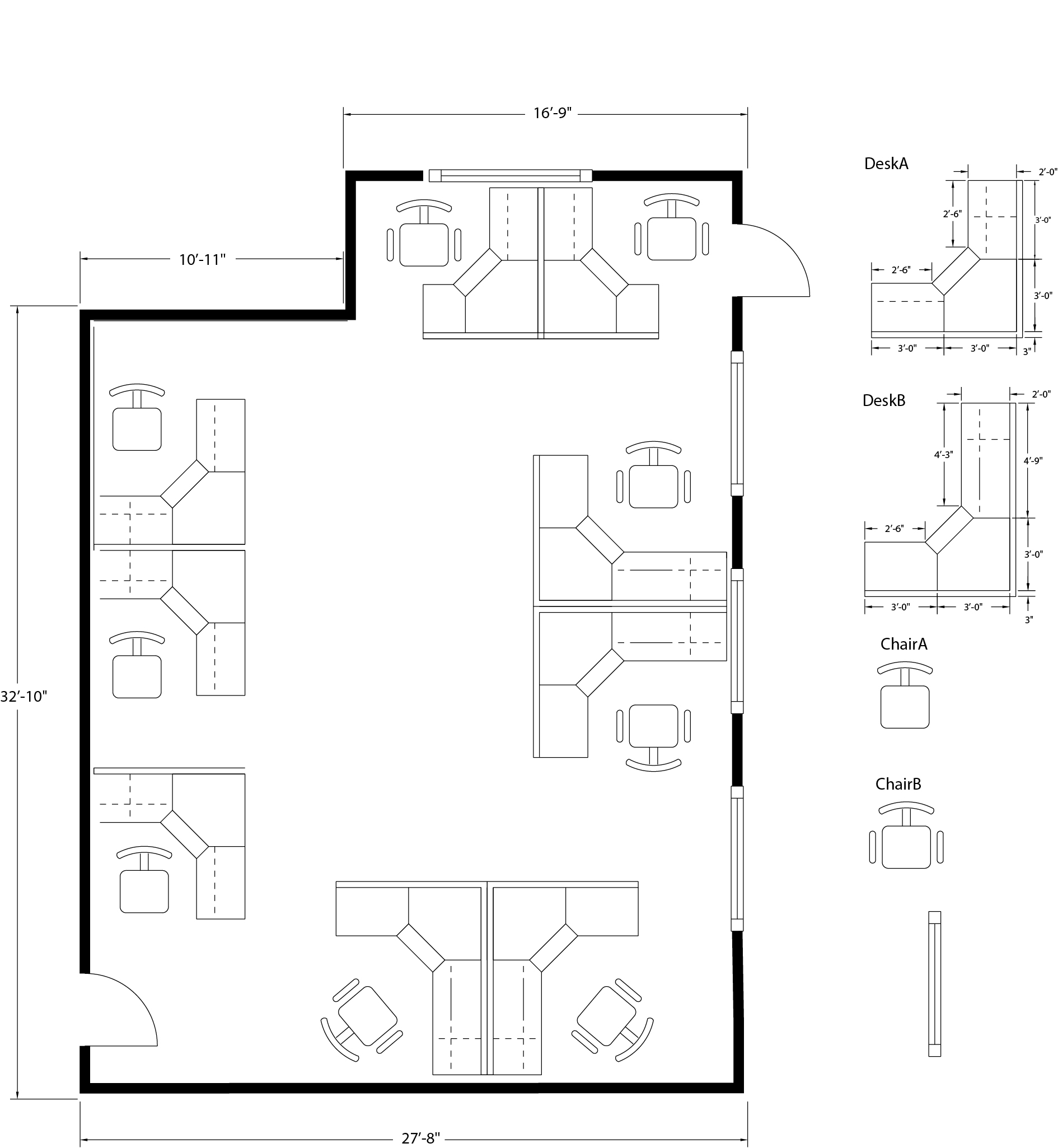
- Chapter 10 Page 432
Exercise 10.7 Office Plan, DeskA, the top left dimension should be 2’-6”. See the image below or view a PDF of the corrected drawing.
Submit Errata
Your information will remain private. We will only use your information if we need to contact you for further details regarding the correction you submit.
